Property Deal Room
3-room flat Ακτή Θεμιστοκλέους, Freattida, Kallipoli – Freattida
Underwriting, tokenization readiness, documents, and service execution in one institutional workflow.

Property Value
€150,000
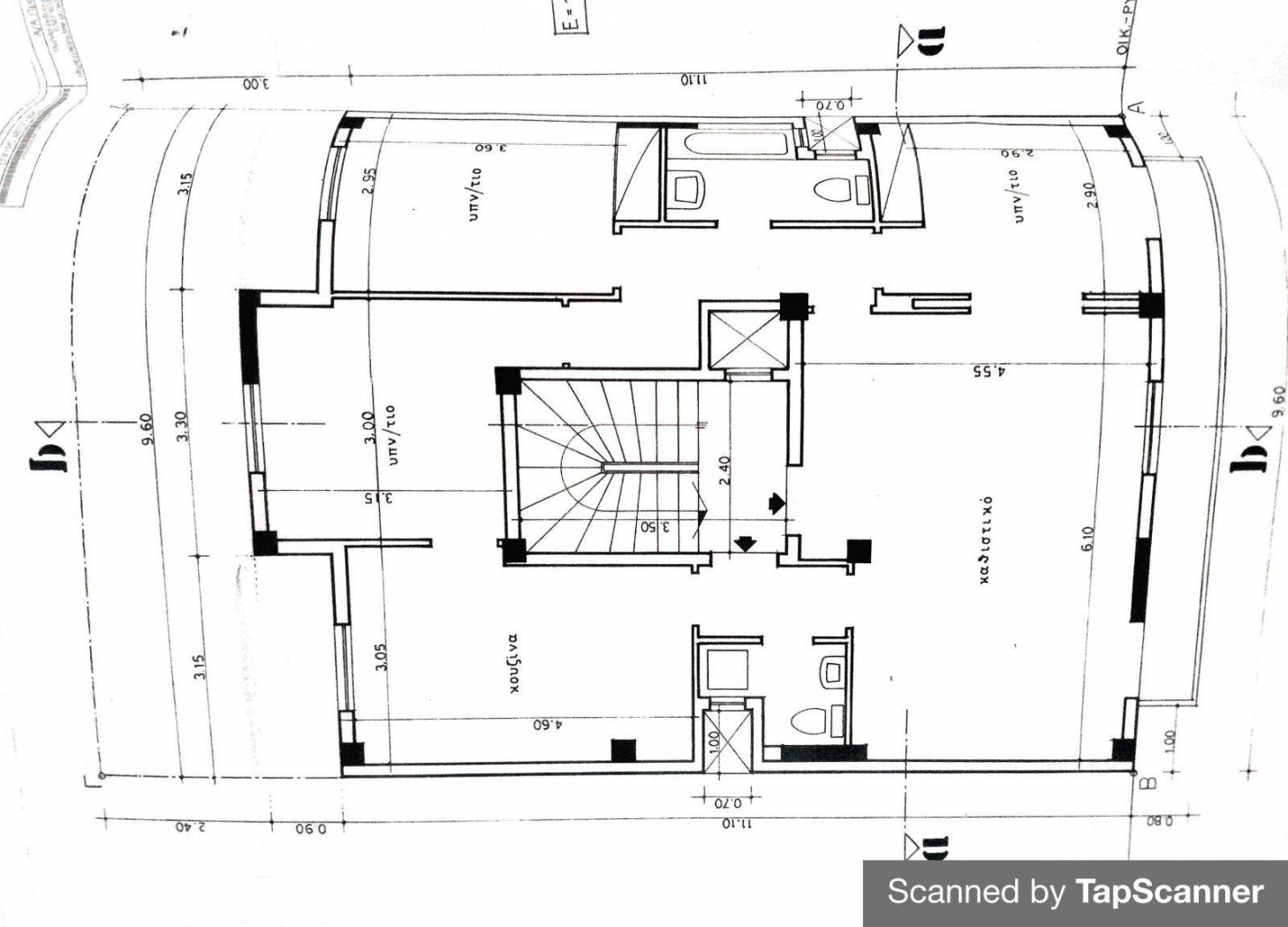
Interior Size
101 m2
Asset Class
Property
Property Narrative
Οροφοδιαμέρισμα 2ου ορόφου σε τριωροφο οίκημα. Δίπλα στη θάλασσα με θέα τη θάλασσα και την Αθήνα. Μερικώς ανακαινισμενο εσωτερικά το 2013 και ολικώς εξωτερικά το 2022 (Ενεργειακή αναβάθμιση). Θερμοπροσοψη, Κουφώματα αλουμινίου, διπλά τζάμια, inverter κλιματιστικά, ηλιακοί θερμοσίφωνες, σίτες. Χωρίς ασανσέρ.
Οροφοδιαμέρισμα 2ου ορόφου σε τριωροφο οίκημα
Δίπλα στη θάλασσα με θέα τη θάλασσα και την Αθήνα
Μερικώς ανακαινισμενο εσωτερικά το 2013 και ολικώς εξωτερικά το 2022 (Ενεργειακή αναβάθμιση)
Θερμοπροσοψη, Κουφώματα αλουμινίου, διπλά τζάμια, inverter κλιματιστικά, ηλιακοί θερμοσίφωνες, σίτες
Χωρίς ασανσέρ.
Listing Snapshot
Location Intelligence
Kallipoli - Freattida, Piraeus
Micro-market demand: High
Transit and livability score: 82/100
GHF Token Readiness
Token profile status: Pre-qualified
Compliance lane: KYC/KYB enabled
Digital sale packaging: Available
Investment Heatmap
Interactive Google Maps enabled
Book A Viewing
Your message goes to GHF first for screening and routing.
Interested In This Property?
Your message goes to GHF first for screening and routing.
eContract & Document Vault
Ownership Certificate
Verified
Technical Inspection
Pending upload
Draft Sale Agreement
Ready for eSignature
Compliance
KYC status: Required at offer stage
Golden Visa fit: Not eligible at current threshold
Ownership chain: Ready for review
