Property Deal Room
Penthouse Αυτοκράτειρας Θεοδώρας, 21, Center, Alexandroupoli
Underwriting, tokenization readiness, documents, and service execution in one institutional workflow.

Property Value
€410,000
Interior Size
145 m2
Asset Class
Property
Property Narrative
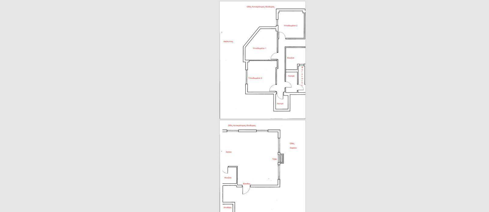
Προκειται για Ρετιρε 4ου οροφου,Ημιτελές, πισω απο τα γυμνασια , 150τ.μ , διαμπερες,απεριοριστη θεα -3 υπνοδωματια -2 μπανια -σαλονι -κουζινα εχει γινει προεγκατασταση ηλεκτρο/υδραυλικη,τριφασικο ρευμα, εχουν περαστει και εξωτερικα κουφωματα. Αποθηκη υπογειου με ασανσερ,
Προκειται για Ρετιρε 4ου οροφου,Ημιτελές, πισω απο τα γυμνασια , 150τ.μ , διαμπερες,απεριοριστη θεα -3 υπνοδωματια -2 μπανια -σαλονι -κουζινα εχει γινει προεγκατασταση ηλεκτρο/υδραυλικη,τριφασικο ρευμα, εχουν περαστει και εξωτερικα κουφωματα
Αποθηκη υπογειου με ασανσερ,
Listing Snapshot
Location Intelligence
Alexandroupoli, Evros
Micro-market demand: High
Transit and livability score: 82/100
GHF Token Readiness
Token profile status: Pre-qualified
Compliance lane: KYC/KYB enabled
Digital sale packaging: Available
Investment Heatmap
Interactive Google Maps enabled
Book A Viewing
Your message goes to GHF first for screening and routing.
Interested In This Property?
Your message goes to GHF first for screening and routing.
eContract & Document Vault
Ownership Certificate
Verified
Technical Inspection
Pending upload
Draft Sale Agreement
Ready for eSignature
