Property Deal Room
Penthouse Αυτοκράτειρας Θεοδώρας, 21, Center, Alexandroupoli
Underwriting, tokenization readiness, documents, and service execution in one institutional workflow.

GHF Token Ready
Golden Visa Eligible
Property Value
€410,000
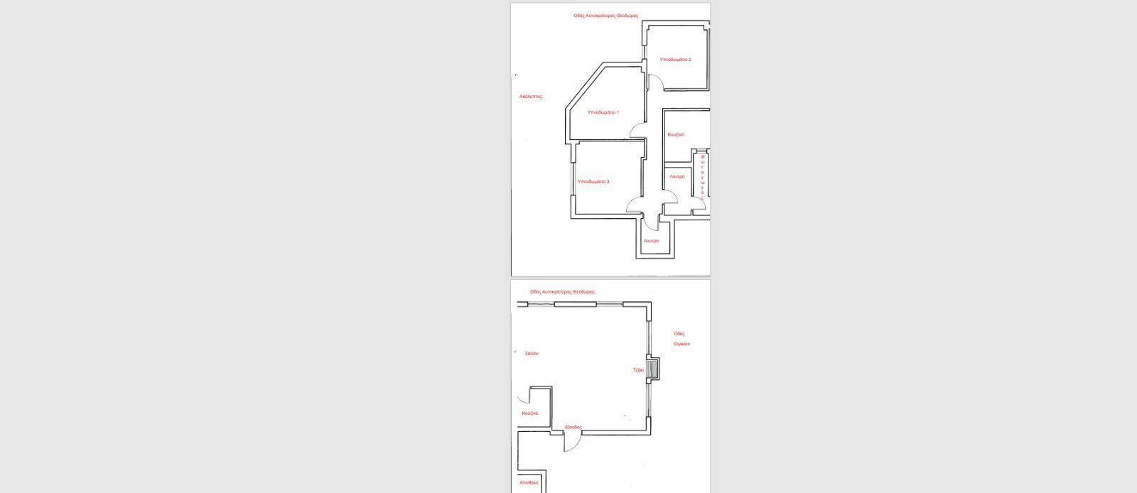
Interior Size
145 m2
Asset Class
Apartment
Location Intelligence
Alexandroupoli, Evros
Micro-market demand: High
Transit and livability score: 82/100
GHF Token Readiness
Token profile status: Pre-qualified
Compliance lane: KYC/KYB enabled
Digital sale packaging: Available
Investment Heatmap
Interactive Google Maps enabled
Zone Overlay
Scroll + pinch to zoom. Drag to inspect exact location.
Investment Metrics
€410,000
~ 228.5396 ETH
Code: GH_F2107746
Size: 145 m2
Alexandroupoli, Evros
Interested In This Property?
Your message goes to GHF first for screening and routing.
eContract & Document Vault
Ownership Certificate
Verified
Technical Inspection
Pending upload
Draft Sale Agreement
Ready for eSignature
